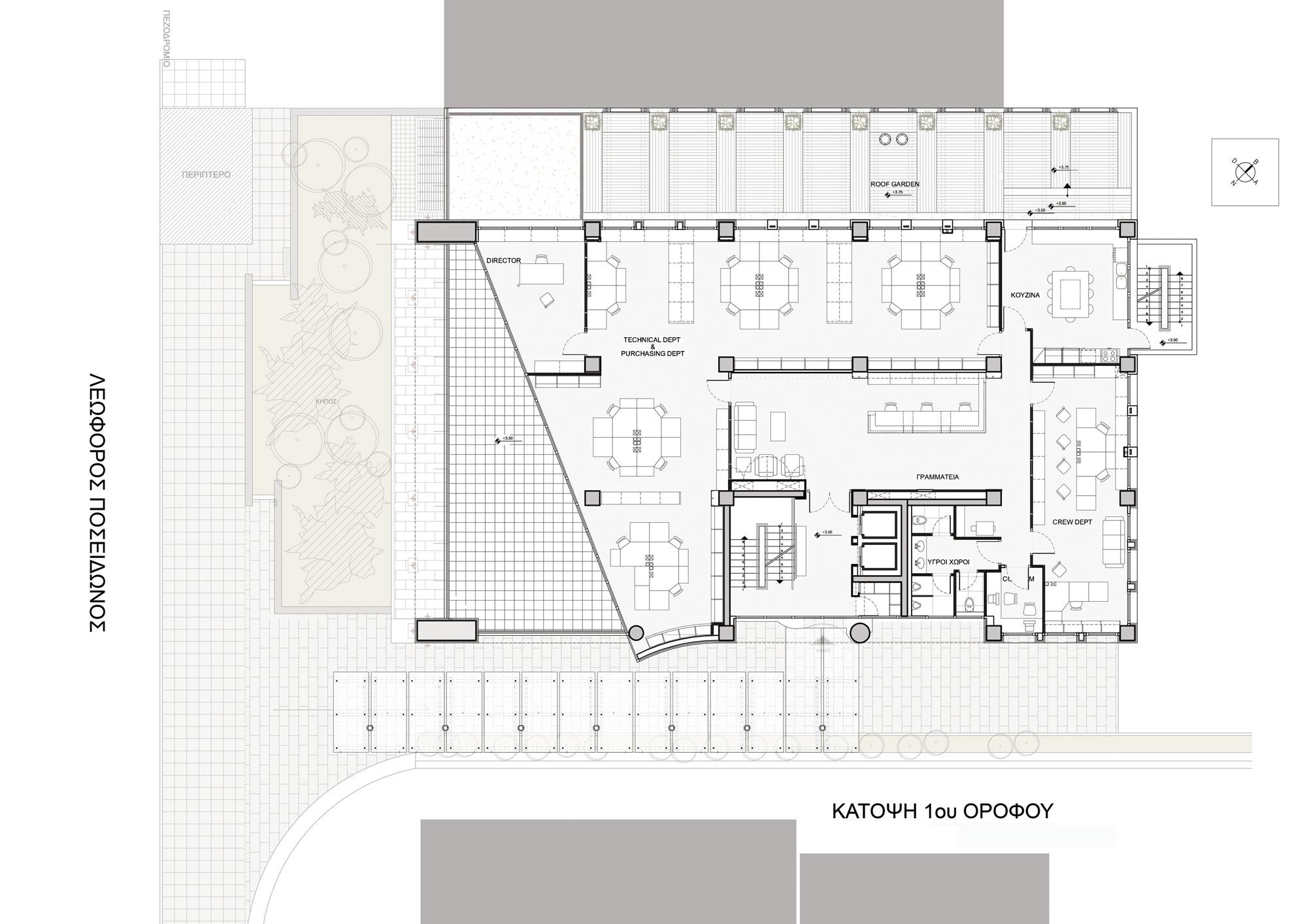
Το κτίριο των γραφείων της ναυτιλιακής εταιρείας Polembros Shipping Ltd αποτελείται από πέντε ορόφους και ένα επίπεδο υπόγειου χώρου στάθμευσης. Κυρίαρχος συνθετικός στόχος των μελετητών υπήρξε η καλύτερη δυνατή αξιοποίηση της θέας προς την θάλασσα σε όλα τα επίπεδα του κτιρίου.
Βασικό συστατικό της κεντρικής συνθετικής ιδέας υπήρξε η υποχώρηση και ταυτόχρονη στροφή του νότιου μετώπου του κτιριακού όγκου, με την οποία με μεγιστοποιείται η επιφάνεια του κτιρίου προς τη θάλασσα. Ο συμπαγής λιτός όγκος του κτιρίου από τούβλο παραμένει παράλληλος προς την ακτή σχηματίζοντας ένα Π, το οποίο αφενός εντάσσει αρμονικά το κτίριο στον υπάρχοντα αστικό ιστό και αφετέρου τονίζει δυναμικά την απότμηση της γυάλινης επιφάνειας.
Η συμβολή των δυο κυρίαρχων υλικών του τούβλου και του γυαλιού, δημιουργεί μια καμπύλη απόληξη στο σημείο τομής του λοξού γυάλινου επιπέδου με το ανατολικό όριο του κτιρίου. Η έντονα δυναμική γυάλινη επιφάνεια (και λόγω της υφής αλλά κυρίως λόγω της διεύθυνσης της) παρασύρει το μανδύα του κτιρίου, παραμορφώνοντας τον, τονίζοντας την ένταση στο σημείο εκείνο και δίνοντας την αίσθηση της κίνησης. Η είσοδος των γραφείων μαζί με τις κατακόρυφες κινήσεις οργανώθηκαν από την ανατολική πλευρά, αφήνοντας αναπόσπαστη τη νότια όψη και προσφέροντας καθαρούς χώρους γραφείων προς τη θάλασσα. Μια σειρά από γυάλινα στέγαστρα επάνω σε μεταλλικούς φορείς inox (ο σχεδιασμός των οποίων παραπέμπει στο θαλασσινό υπόβαθρο της εταιρείας) κάθετα προς το παραλιακό μέτωπο σηματοδοτεί και παράλληλα προστατεύει την πορεία προς την είσοδο. Το λειτουργικό σχήμα της εταιρείας οδήγησε στην οργάνωση ενός μεικτού συστήματος διαμόρφωσης των χώρων εργασίας: ανοικτά γραφεία για ορισμένα τμήματα της εταιρείας και αυτόνομοι χώροι γραφείων για τα διευθυντικά στελέχη.
Εσωτερικά η εκτενής χρήση του ξύλου υπαγορεύτηκε από την εικόνα και το χαρακτήρα που ήθελε να προσδώσει η εταιρεία στους χώρους της. Τα ξύλινα δάπεδα από ευρωπαϊκή ισόβενη ξυλεία δρυός μεγάλου φάρδους, οι επενδύσεις τοίχων- συνδυασμός διάτρητων και μη ηχοαπορροφητικών πετασμάτων με επένδυση καπλαμά δρυός- και ο σταθερός εξοπλισμός γραφείων από ξυλεία δρυός (πάγκοι υποδοχής, βιβλιοθήκες κτλ.) συνδυάζονται με γυάλινες επιφάνειες με αμμοβολή κατά ρίγες, οι οποίες επιτρέπουν τη διείσδυση του φυσικού φωτός και μεγαλώνουν το χώρο, χωρίς να εμποδίζουν την απαραίτητη ιδιωτικότητα του κάθε χώρου εργασίας. Τα υλικά που χρησιμοποιήθηκαν εξωτερικά είναι τούβλο και γυαλί με επιμέρους χρήση inox στους φορείς των στεγάστρων και στα κιγκλιδώματα. Ο ακάλυπτος χώρος στο δυτικό όριο του οικοπέδου και μεταξύ των δυο κτιριακών όγκων έχει αξιοποιηθεί με την δημιουργία ενός χώρου αναψυκτηρίου/ εκδηλώσεων. Η χρήση του ξύλου συνεχίζεται και εδώ σε αρμονία με τους εσωτερικούς χώρους, επενδύοντας το δάπεδο και επεκτείνεται κατακόρυφα στον τυφλό και αδιάφορο κατά τα λοιπά τοίχο του διπλανού κτιρίου.
Polembros Shipping Ltd
2004
4.350 sq.m.
Λεωφόρος Ποσειδώνος, Φάληρο
Γραφεία
Konstantinos Kontos
offices, industrial buildings, office design, architecture